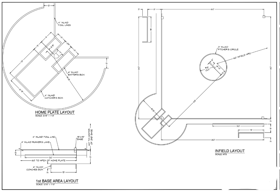
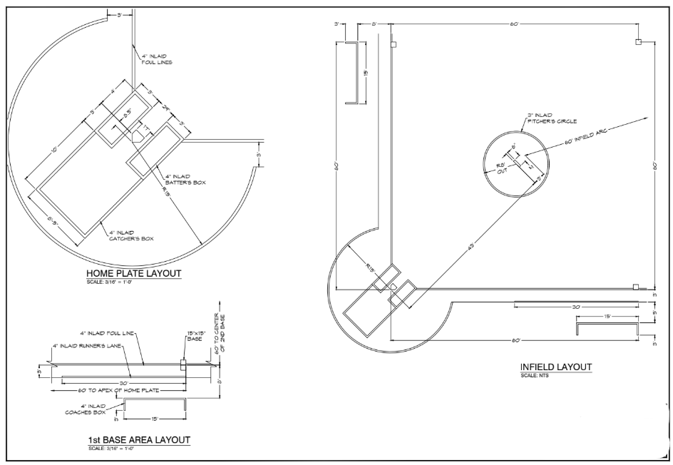
Baseball & Softball Field Turf Installation
Baseball Field Renderings
Softball Field Renderings
Current Photos
Baseball Field
April 2026
